新宿西口駅徒歩3分4階30坪事務所仕様クリニック向け※飲食不可
賃料
-
種別
店舗一部
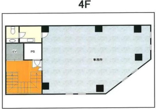
面積
99.20㎡
坪数
30.00坪
住所
東京都新宿区西新宿7丁目1-10
交通
新宿西口駅
徒歩3分
外観
その他