0120-936-781

営業時間:
10:00~18:00
定休日:
土日・祝日

USENテナントマッチ|事業用店舗専門の株式会社USEN Properties > (店舗(賃貸))地域から探す > 国立市 > 谷保駅 徒歩1分 57坪 セクション7 2階 スケルトン

谷保駅 徒歩1分 57坪 セクション7 2階 スケルトン

物件紹介

以前は大手飲食チェーン店が入居していた店舗です!重飲食可能!

賃料/坪単価
55万円 /
0.95万円
坪数/面積
57.72坪 /
190.82㎡
所在階
-
管理費・共益費
-
保証金
6ヶ月
礼金
2ヶ月
  • お問い合わせ
  • 検討リストに追加

PHOTO GALLERY

印刷する
  • 【外観】 | 谷保駅 徒歩1分 57坪 セクション7 2階 スケルトン

    【外観】

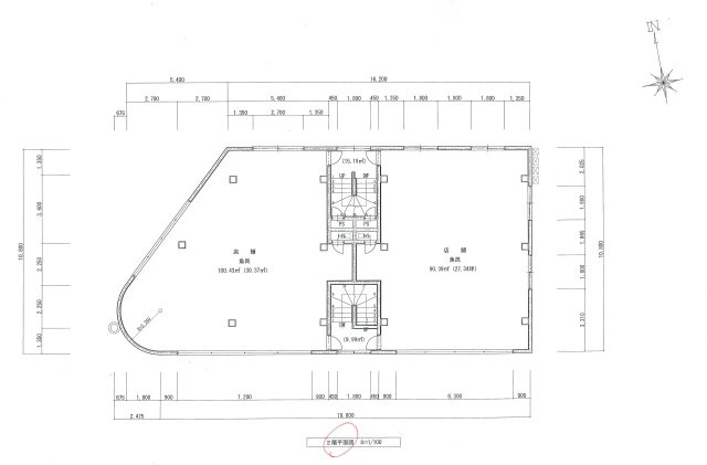
  • 【間取り】 | 谷保駅 徒歩1分 57坪 セクション7 2階 スケルトン

    【間取り】

  • 【外観】 | 谷保駅 徒歩1分 57坪 セクション7 2階 スケルトン

※写真や図と実際の現状とが異なる場合は現状を優先させていただきます。

設備条件

  • 飲食店可
  • スケルトン渡し
  • 重飲食可
  • 軽飲食可

お問い合わせ

株式会社USEN Properties

0120-936-781

  • 〒141-0021
  • 東京都品川区上大崎3丁目1-1 目黒セントラルスクエア

10:00~18:00  定休日:土日・祝日

物件お問い合わせ

無料!カンタン会員登録!お得情報満載!!
最新物件、未公開物件情報が閲覧いただけます!

新規会員登録

物件概要

【店舗一部】 物件番号:78764438 情報更新日:2026年01月14日 次回更新予定日:2026年01月28日
所在地 東京都国立市富士見台1丁目16‐8
交通
坪数(面積) 57.72坪(190.82㎡)
賃料/坪単価 55万円/0.95万円 管理費・共益費 -
敷金/礼金/保証金 0ヶ月/2ヶ月/6ヶ月 償却/敷引 2ヶ月/-
更新料 1ヶ月(新賃料) 権利金/雑費 -/-
造作譲渡金 - 駐車場/月額料金 -/-
保険加入/料金 有/- 保険名/保険期間 -/-
保証人代行義務 - 保証会社 -
保証会社詳細 - 向き -
築年月(築年数) 1992年 6月 (築33年) 契約期間 3年
種別/構造 店舗一部/鉄骨造 用途地域 -
部屋/所在階/階建 -/-/4階建 地下1階 総戸数 -
現況/引渡時期 空家/即時 取引態様 仲介
物件番号 78764438 取引条件の有効期限 2026年01月28日
設備条件
  • 飲食店可
  • スケルトン渡し
  • 重飲食可
  • 軽飲食可
取扱会社
  • 株式会社USEN Properties
  • 東京都品川区上大崎3丁目1-1 目黒セントラルスクエア
  • TEL:0120-936-781
  • 東京都知事 (1) 第111630号
    古物商許可証番号 東京都公安委員会 第302172009421号
QRコード

QRコード

このQRコードを読み取ることで、スマホでも物件情報を確認できます。

地図

※地図上に表示される物件の位置は付近住所に所在することを表すものであり、実際の物件所在地とは異なる場合がございます。

物件お問い合わせ

必要項目の入力

0/0
必須項目完了

確認画面へ
お進み下さい

0/0
必須項目完了

確認画面へ
お進み下さい

お名前

必須

法人名

任意

メールアドレス

必須

電話番号

必須

建物名/部屋番号

任意

内容

必須

要望

任意

利用規約及びプライバシーポリシーを必ずお読みください。左記内容に同意いただいた場合は、確認画面へお進み下さい。

未入力項目があります

この物件を見た人はこちらの物件も見ています

国立市富士見台1丁目の店舗一部

国立市富士見台1丁目の店舗一部の画像

賃料
30.24万円
種別
店舗一部
住所
東京都国立市富士見台1丁目
交通
谷保駅
徒歩1分

お問い合わせ

株式会社USEN Properties

会社画像

0120-936-781

10:00~18:00  定休日:土日・祝日

  • 〒141-0021
  • 東京都品川区上大崎3丁目1-1 目黒セントラルスクエア

物件リクエスト

トップへ戻る