0120-936-781

営業時間:
10:00~18:00
定休日:
土日・祝日

USENテナントマッチ|事業用店舗専門の株式会社USEN Properties > (店舗(賃貸))地域から探す > 新宿区 > 新宿西口駅徒歩3分4階30坪事務所仕様クリニック向け※飲食不可

新宿西口駅徒歩3分4階30坪事務所仕様クリニック向け※飲食不可

物件紹介

新宿西口3分 4F 30坪 事務所仕様 クリニック向け ※飲食不可

賃料/坪単価
627,000 /
2.09万円
坪数/面積
30.00坪 /
99.20㎡
所在階
4階
管理費・共益費
66,000円
敷金
要相談
礼金
要相談
  • お問い合わせ
  • 検討リストに追加

PHOTO GALLERY

印刷する
  • 【外観】 | 新宿西口駅徒歩3分4階30坪事務所仕様クリニック向け※飲食不可

    【外観】

  • 【その他】 | 新宿西口駅徒歩3分4階30坪事務所仕様クリニック向け※飲食不可

    【その他】

  • 【外観】 | 新宿西口駅徒歩3分4階30坪事務所仕様クリニック向け※飲食不可
  • 【その他】 | 新宿西口駅徒歩3分4階30坪事務所仕様クリニック向け※飲食不可

※写真や図と実際の現状とが異なる場合は現状を優先させていただきます。

設備条件

    お問い合わせ

    株式会社USEN Properties

    0120-936-781

    • 〒141-0021
    • 東京都品川区上大崎3丁目1-1 目黒セントラルスクエア

    10:00~18:00  定休日:土日・祝日

    物件お問い合わせ

    無料!カンタン会員登録!お得情報満載!!
    最新物件、未公開物件情報が閲覧いただけます!

    新規会員登録

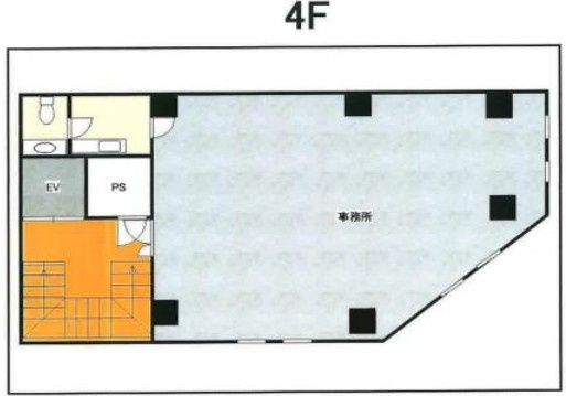
    物件概要

    【店舗一部】 物件番号:99146827 情報更新日:2025年12月08日 次回更新予定日:2025年12月22日
    所在地 東京都新宿区西新宿7丁目1-10
    交通
    坪数(面積) 30.00坪(99.20㎡)
    賃料/坪単価 62.7万円/2.09万円 管理費・共益費 66,000円
    敷金/礼金/保証金 要相談/要相談/10ヶ月 償却/敷引 -/-
    更新料 - 権利金/雑費 -/-
    造作譲渡金 - 駐車場/月額料金 -/-
    保険加入/料金 有/- 保険名/保険期間 -/-
    保証人代行義務 - 保証会社 -
    保証会社詳細 - 向き -
    築年月(築年数) 1974年 1月 (築51年) 契約期間 定期借家 2年
    種別/構造 店舗一部/鉄筋コンクリート 用途地域 -
    部屋/所在階/階建 -/4階/9階建 総戸数 -
    現況/引渡時期 空家/即時 取引態様 仲介
    物件番号 99146827 取引条件の有効期限 2025年12月22日
    設備条件
      備考 飲食不可、給排水の点で歯科不可
      取扱会社
      • 株式会社USEN Properties
      • 東京都品川区上大崎3丁目1-1 目黒セントラルスクエア
      • TEL:0120-936-781
      • 東京都知事 (1) 第111630号
        古物商許可証番号 東京都公安委員会 第302172009421号
      QRコード

      QRコード

      このQRコードを読み取ることで、スマホでも物件情報を確認できます。

      地図

      ※地図上に表示される物件の位置は付近住所に所在することを表すものであり、実際の物件所在地とは異なる場合がございます。

      物件お問い合わせ

      必要項目の入力

      0/0
      必須項目完了

      確認画面へ
      お進み下さい

      0/0
      必須項目完了

      確認画面へ
      お進み下さい

      お名前

      必須

      法人名

      任意

      メールアドレス

      必須

      電話番号

      必須

      建物名/部屋番号

      任意

      内容

      必須

      要望

      任意

      利用規約及びプライバシーポリシーを必ずお読みください。左記内容に同意いただいた場合は、確認画面へお進み下さい。

      未入力項目があります

      この物件を見た人はこちらの物件も見ています

      新宿御苑前駅6分 藤和ハイタウン 1階 18坪 事務所仕様

      新宿御苑前駅6分 藤和ハイタウン 1階 18坪 事務所仕様の画像

      賃料
      53.9万円
      種別
      店舗一部
      住所
      東京都新宿区新宿1丁目
      交通
      新宿御苑前駅
      徒歩6分

      新宿駅徒歩1分 西新宿ビル 5階 13.94坪 エステサロン居抜き

      新宿駅徒歩1分 西新宿ビル 5階 13.94坪 エステサロン居抜きの画像

      賃料
      42.9万円
      種別
      店舗一部
      住所
      東京都新宿区西新宿1丁目
      交通
      新宿駅
      徒歩1分

      江戸川橋駅5分 イマス山吹町ビル 1階 28.61坪

      江戸川橋駅5分 イマス山吹町ビル 1階 28.61坪の画像

      賃料
      40.9123万円
      種別
      店舗一部
      住所
      東京都新宿区山吹町
      交通
      江戸川橋駅
      徒歩5分

      お問い合わせ

      株式会社USEN Properties

      会社画像

      0120-936-781

      10:00~18:00  定休日:土日・祝日

      • 〒141-0021
      • 東京都品川区上大崎3丁目1-1 目黒セントラルスクエア

      物件リクエスト

      トップへ戻る